Horinouchi 3-chome Suginami-ku New house
【 新築 一戸建て 】杉並区堀ノ内3丁目新築戸建!
- 最寄駅
- 東京メトロ丸ノ内線 新高円寺駅 徒歩 12分
- 面積
土地/78.68㎡
建物/96.05㎡
- 築年月
- 2019年05月
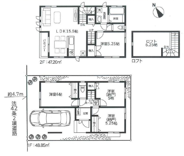
- 間取り
- 4 LDK
物件写真・間取り
物件概要
| 物件名 | Horinouchi 3-chome Suginami-ku New house |
|---|
| 交通機関 | 東京メトロ丸ノ内線 新高円寺駅 徒歩 12分 東京メトロ丸ノ内線方南支線 方南町駅 徒歩 14分 |
|---|
| 間取り | 4 LDK |
|---|
| 間取り詳細 | 洋室約6.0帖、約5.25帖×2、約5.0帖、LDK約15.5帖 |
|---|
| 土地権利 | 所有権 |
|---|
| 建築確認番号 | HPA-19-00764-1 |
|---|
| 土地面積 | 78.68㎡ |
|---|
| 私道負担面積 | 無し |
|---|
| 建物面積 | 96.05㎡ |
|---|
| 建物構造 | 木造 |
|---|
| 階 / 階数 | 2階建 |
|---|
| 築年月 | 2019年05月 |
|---|
| 都市計画 | 市街化区域 |
|---|
| 用途地域 | 第一種低層住居専用地域 |
|---|
| 建ぺい率 | 60% |
|---|
| 容積率 | 200% |
|---|
| 駐車場 | 有 |
|---|
| 接道 |
|
|---|
| 地目 | 宅地 |
|---|
| 現況 | 建築中 |
|---|
| 引渡し | 相談 |
|---|
| 取引態様 | 媒介 |
|---|
| 物件番号 | 20190330-2 |
|---|


◎震度7クラスの地震にも安心。施工者オリジナル高耐震・高耐久・高性能住宅。住宅性能表示対応IDS工法。
◎フラット35S優良住宅取得支援制度対象物件
◎設計住宅性能評価書取得予定
◎建設住宅性能評価書取得予定
◎性能評価書において、6項目の最高等級取得
・耐震等級(倒壊・損傷のしにくさ)・・・東京では震度6から震度7の1.5倍の地震にも耐えられる。
・耐風等級・・・500年に一度発生する暴風の12倍に対しても倒壊しない。
・劣化対策等級(構造躯体等)・・・概ね75年から90年もつ住宅。
・ホルムアルデヒド発散等級・・・居室の内装材からのホルムアルデヒドの放散量を少なくする対策。
・維持管理対策等級・・・専用の給排水管及びガス管の維持管理(清掃・点検及び補修)を容易とするために必要な対策。
◎ハウスプラス住宅瑕疵保険採用(第三者による建物保険付保)・・・引渡し後10年間の保証を行います。保険終了後一定の条件を満たした場合、売主による最長30年の条件付長期保証が受けられます。
◎IDS工法スケルトンインフィル住宅・・・ベタ基礎に基礎パッキンを配し、壁倍率5倍の壁パネルを諸所に配した通気工法です。着工から完成まで第三者機関による計4回の検査を通過した物件のみ引渡しを行います。
◎設備・仕様
・ベタ基礎・基礎パッキン・LowE複層ガラス・システムキッチン・一坪ユニットバス・録画機能付インターホン・シャワートイレ・シャワー付洗面化粧台・階段浴室トイレに手摺設置・玄関断熱ドア・床下収納庫・外壁サイディング・食器洗浄機・浴室乾燥機・ロフト(固定階段)