ST. HILLS HONANCHO
【 中古 マンション 】杉並区堀ノ内2丁目/4LDK/新規リノベーション!
- 最寄駅
- 東京メトロ丸ノ内線方南支線 方南町駅 徒歩 8分
- 面積
専有面積/84.16㎡
- 築年月
- 1987年05月
- 間取り
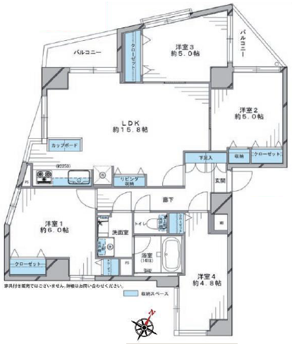
- 4 LDK
物件写真・間取り
物件概要
| 物件名 | ST. HILLS HONANCHO |
|---|
| 交通機関 | 東京メトロ丸ノ内線方南支線 方南町駅 徒歩 8分 |
|---|
| 間取り | 4 LDK |
|---|
| 間取り詳細 | 洋室約6.0帖、約5.0帖×2、約4.8帖、LDK約15.8帖 |
|---|
| 土地権利 | 所有権 |
|---|
| 専有面積 | 84.16㎡ |
|---|
| 建物構造 | その他 |
|---|
| 階 / 階数 | 10階建5階部分 |
|---|
| 築年月 | 1987年05月 |
|---|
| 駐車場 | 無 |
|---|
| 現況 | 空 |
|---|
| 管理費 | 24400円 |
|---|
| 修繕積立金 | 9760円 |
|---|
| 引渡し | 即時 |
|---|
| 備考 | ■構造/SRC・S造陸屋根10階建 ■バルコニー面積/5.91㎡ ■管理形態/全部委託(巡回) ■管理会社/株式会社アドバンス |
|---|
| 物件番号 | 20190331-2 |
|---|


◎信頼品質リノベマンション「ARISE RENOVATION」
◎ハイグレードリノベーション「Urban Style」
-こだわり抜いた機能性と洗練されたARISEスタイル-
ARISEは、業界トップクラスの「安心」と「快適」を重視したお部屋づくりを追求します。
◎「安心」をデザインする
■業界初「10年の長期保証」を実現
全物件の給水管・排水管・ガス管に10年の長期保証を実現。
さらに、お部屋全体にも、充実したアフターサービス保証がついています。
■信頼の証「あんしん検査報告書」
安心・安全に暮らしていただくために、お部屋の隅々の検査を実施。
検査状況は報告書としてまとめ、お部屋のお引き渡し時にお渡しします。
■専用だから安心「カスタマー相談室」
ご購入者様専用のカスタマー相談室を設置。
ダイレクトに相談できるため、対応もスピーディー。
水まわりの不具合は24時間365日対応しています。
◎「快適」をデザインする
ARISEは、「実際に暮らして、使って機能的なもの」をコンセプトに、設備仕様はもちろん、永く快適に暮らせるよう、専任のリノベーションプランナーが機能的なお部屋をプランニング。
清掃性・収納性・耐久性・生活動線など、様々な事を考えてつくられています。
※以上、販売事業者パンフレットより※
◎安心の新耐震基準建物
◎3方向角部屋
◎陽当たり・眺望良好
◎ペット飼育可(規約に準ずる)
◎安心のオートロック完備
◎便利な宅配BOXも有
◎各部屋豊富な収納スペース確保、お部屋がスッキリ広々利用可能
◎全居室開口部あり、明るい日差しが差し込む2面バルコニー
◎LDKは広々15.8帖確保
◎R1住宅適合物件
◎新規内装リノベーション済(平成31年3月)
・キッチン交換・浴室交換・洗面交換・トイレ交換・床張替・建具交換・照明交換・給湯器(追焚機能)交換・下足入・全クロス張替・アクセントクロス・ハウスクリーニング
◎晴れた日にはリビングの窓から富士山を望めます