Minamidai 4-chome Nakano-ku New house A
【 新築 一戸建て 】中野区南台4丁目の新築戸建!
- 最寄駅
- 東京メトロ丸ノ内線方南支線 方南町駅 徒歩 10分
- 面積
土地/73.67㎡
建物/122.90㎡
- 築年月
- 2020年02月
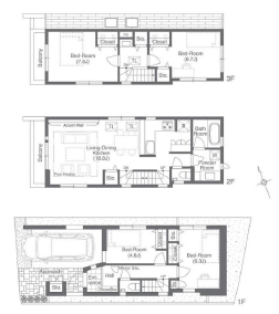
- 間取り
- 4 LDK
物件写真・間取り
物件概要
| 物件名 | Minamidai 4-chome Nakano-ku New house A |
|---|
| 交通機関 | 東京メトロ丸ノ内線方南支線 方南町駅 徒歩 10分 京王線 笹塚駅 徒歩 14分 |
|---|
| 間取り | 4 LDK |
|---|
| 間取り詳細 | 洋室約7.6帖、約6.7帖、約6.3帖、約4.8帖、LDK約18.8帖 |
|---|
| 土地権利 | 所有権 |
|---|
| 建築確認番号 | 第BNV確済19-468号 |
|---|
| 土地面積 | 73.67㎡ |
|---|
| 建物面積 | 122.90㎡ |
|---|
| 建物構造 | 木造 |
|---|
| 階 / 階数 | 3階建 |
|---|
| 築年月 | 2020年02月 |
|---|
| 都市計画 | 市街化区域 |
|---|
| 用途地域 | 第一種中高層住居専用地域 |
|---|
| 建ぺい率 | 60% |
|---|
| 容積率 | 160% |
|---|
| 駐車場 | 有 |
|---|
| 接道 |
|
|---|
| 地目 | 宅地 |
|---|
| 現況 | 建築中 |
|---|
| 引渡し | 相談 |
|---|
| 備考 | ■建物面積/建物面積には駐車場10.97㎡、アプローチ2.78㎡を含みます。 ■防火指定/準防火地域(新防火地域) ■高度地区/第二種高度地区 ■その他法令/南台四丁目地区地区計画 ■設備/都市ガス・公営水道・本下水 ■その他/司法書士及び火災保険は売主指定とさせていただきます。 |
|---|
| 取引態様 | 媒介 |
|---|
| 物件番号 | 20200305-1 |
|---|
| 情報登録日 | 0000年00月00日 |
|---|




CLASSIA
南台の家
新築分譲住宅