Excelsior Suginami Honancho
【
中古
マンション
】新規リノベーション!/方南町駅徒歩5分!/2LDK+WIC
エクセルシオール杉並方南町 3階
- 最寄駅
- 東京メトロ丸ノ内線方南支線 方南町駅 徒歩 5分
- 面積
専有面積/55.15㎡
- 築年月
- 1997年06月
- 間取り
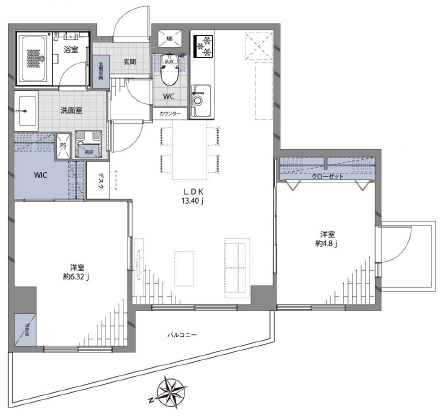
- 2 LDK
物件写真・間取り
物件概要
| 物件名 | Excelsior Suginami Honancho |
|---|
| 交通機関 | 東京メトロ丸ノ内線方南支線 方南町駅 徒歩 5分 |
|---|
| 間取り | 2 LDK |
|---|
| 間取り詳細 | 洋室約6.32帖、約4.8帖、LDK約13.408帖 |
|---|
| 土地権利 | 所有権 |
|---|
| 専有面積 | 55.15㎡ |
|---|
| 建物構造 | RC |
|---|
| 階 / 階数 | 8階建3階部分 |
|---|
| 築年月 | 1997年06月 |
|---|
| 駐車場 | 無 |
|---|
| 現況 | 空 |
|---|
| 管理費 | 13100円 |
|---|
| 修繕積立金 | 8930円 |
|---|
| 引渡し | 相談 |
|---|
| 備考 | ■バルコニー面積/8.18㎡ ■総戸数/40戸 ■分譲会社/- ■施工会社/大和建設株式会社 ■管理形態/全部委託(巡回) ■管理会社/株式会社ハリマビステム |
|---|
| 取引態様 | 媒介 |
|---|
| 物件番号 | 20210604-2 |
|---|
| 情報登録日 | 0000年00月00日 |
|---|


◎駐輪場1台無償
◎住宅ローン控除利用可能物件
◎不動産取得税減税対象物件
◎角部屋・二面バルコニー
◎二重サッシ有
◎新規内装リノベーション
■フローリング新規貼替 ■ユニットバス新規交換 ■洗面化粧台新規交換 ■トイレ新規交換 ■システムキッチン新規交換 ■壁・天井クロス新規交換 ■建具・玄関収納新規交換 ■給湯器新規交換 ■洗濯水栓・防水パン新規交換 ■給排水管・給湯管新規交換(専有部)