Jaycity Conforto
【
中古
マンション
】新規リノベーション!/方南町駅徒歩1分!/3LDK+WIC
ジェイシティコンフォルト 3階
- 最寄駅
- 東京メトロ丸ノ内線方南支線 方南町駅 徒歩 1分
- 面積
専有面積/60.30㎡
- 築年月
- 2001年05月
- 間取り
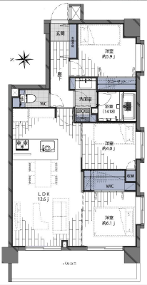
- 3 LDK
物件写真・間取り
物件概要
| 物件名 | Jaycity Conforto |
|---|
| 交通機関 | 東京メトロ丸ノ内線方南支線 方南町駅 徒歩 1分 |
|---|
| 間取り | 3 LDK |
|---|
| 間取り詳細 | 洋室約6.1帖、約5.9帖、約4.0帖、LDK約12.6帖 |
|---|
| 土地権利 | 所有権 |
|---|
| 専有面積 | 60.30㎡ |
|---|
| 建物構造 | RC |
|---|
| 階 / 階数 | 7階建3階部分 |
|---|
| 築年月 | 2001年05月 |
|---|
| 駐車場 | 無 |
|---|
| 現況 | 空 |
|---|
| 管理費 | 11150円 |
|---|
| 修繕積立金 | 6900円 |
|---|
| 引渡し | 相談 |
|---|
| 備考 | ■バルコニー面積/9.15㎡ ■総戸数/37戸 ■分譲会社/- ■施工会社/株式会社日本プレスト ■管理形態/全部委託(日勤) ■管理会社/株式会社合人社計画研究所 |
|---|
| 取引態様 | 媒介 |
|---|
| 物件番号 | 20210715-5 |
|---|
| 情報登録日 | 0000年00月00日 |
|---|


◎住宅ローン控除利用可能物件
◎不動産取得税減税対象物件
◎オートロック有
◎宅配ボックス有
◎南西角部屋
◎新規内装リノベーション
■フローリング新規貼替 ■ユニットバス新規交換 ■洗面化粧台新規交換 ■トイレ新規交換 ■システムキッチン新規交換 ■壁・天井クロス新規交換 ■建具・玄関収納新規交換 ■給湯器新規交換 ■洗濯水栓・防水パン新規交換 ■給排水管・給湯管新規交換(専有部)