Taijyu Mansion
【
中古
マンション
】新規内装リノベーション!/方南町駅4分!/2LDK!
大寿マンション 1階
- 最寄駅
- 東京メトロ丸ノ内線方南支線 方南町駅 徒歩 4分
- 面積
専有面積/53.38㎡
- 築年月
- 1970年11月
- 間取り
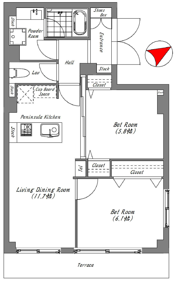
- 2 LDK
物件写真・間取り
物件概要
| 物件名 | Taijyu Mansion |
|---|
| 交通機関 | 東京メトロ丸ノ内線方南支線 方南町駅 徒歩 4分 |
|---|
| 間取り | 2 LDK |
|---|
| 間取り詳細 | 洋室約6.1帖、約5.8帖、LDK約11.7帖 |
|---|
| 土地権利 | 所有権 |
|---|
| 専有面積 | 53.38㎡ |
|---|
| 建物構造 | RC |
|---|
| 階 / 階数 | 6階建1階部分 |
|---|
| 築年月 | 1970年11月 |
|---|
| 現況 | 空 |
|---|
| 管理費 | 10000円 |
|---|
| 修繕積立金 | 管理費に含む円 |
|---|
| 引渡し | 相談 |
|---|
| 備考 | ■テラス面積/5.22㎡ ■総戸数/32戸 ■施工会社/- ■管理形態/自主管理 ■管理会社/- ■その他/建築基準法に定める接道義務を満たしておりません。 |
|---|
| 取引態様 | 媒介 |
|---|
| 物件番号 | 20210830-6 |
|---|
| 情報登録日 | 0000年00月00日 |
|---|


◎新規内装リノベーション
■システムキッチン(浄水器付き水栓・人工大理石トップ・フロントスクリーン) ■ユニットバス(1116サイズ) ■洗面化粧台 ■トイレ ■給湯器 ■洗濯防水パン・洗濯用水栓 ■フロアタイル ■建具一式 ■フローリング ■二重床 ■シューズボックス ■照明一式(リモコン付き ■クロス ■TVモニター付きインターホン ■スイッチパネル・コンセント・分電盤 ■ハウスクリーニング