成約済み物件

Monarch Mansion #2 Honan A

【 中古 マンション 】新規スケルトンリフォーム!/方南町徒歩4分/2DK
モナークマンション第2方南A棟 2階

最寄駅
東京メトロ丸ノ内線方南支線 方南町駅 徒歩 4分
面積

専有面積/34.32㎡

築年月
1982年10月
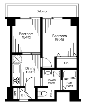
間取り
2 DK

◎新規内装リフォーム

■全室クロス・フローリング張替 ■ユニットバス・洗面化粧台新規交換 ■浴室乾燥暖房機新規取付 ■温水洗浄便座トイレ ■システムキッチン ■建具 ■給湯器新規交換(追焚き機能付) ■エアコン新規取付2台 ■カーテンレール新規取付 ■ハウスクリーニング

物件写真・間取り

間取図
間取図

物件概要

物件名

Monarch Mansion #2 Honan A

交通機関

東京メトロ丸ノ内線方南支線 方南町駅 徒歩 4分

間取り 2 DK
間取り詳細

洋室約6.0帖、約4帖、DK

土地権利 所有権
専有面積

34.32㎡

建物構造 RC
階 / 階数

7階建2階部分

築年月

1982年10月

現況
管理費

10450円

修繕積立金

10450円

引渡し 相談
備考■バルコニー面積/-
■総戸数/23戸
■旧分譲会社/東京ビルディング株式会社
■施工会社/村松組株式会社
■管理形態/全部委託(日勤)
■管理会社/東京互光株式会社
取引態様 媒介
物件番号20220707-5
情報登録日0000年00月00日
最新ニュース
会社案内

株式会社スクエア

東京都杉並区堀ノ内1-5-20-203

0120-944-909

TEL03-6337-6567

FAX 03-6800-3580

営業時間 9:30~18:30
定休日 毎週水曜日

Copyright (C)2025株式会社スクエア All Rights Reserved.