Honan Sun Heights
【
中古
マンション
】新規内装リフォーム!/方南町駅5分!/2LDK!
方南サンハイツ 2階
- 最寄駅
- 東京メトロ丸ノ内線方南支線 方南町駅 徒歩 5分
- 面積
専有面積/50.23㎡
- 築年月
- 1982年02月
- 間取り
- 2 LDK
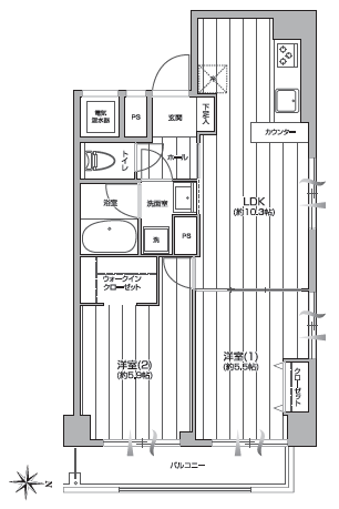
物件写真・間取り
物件概要
| 物件名 | Honan Sun Heights |
|---|
| 交通機関 | 東京メトロ丸ノ内線方南支線 方南町駅 徒歩 5分 |
|---|
| 間取り | 2 LDK |
|---|
| 間取り詳細 | 洋室約5.9帖、約5.5帖、LDK約10.3帖 |
|---|
| 土地権利 | 所有権 |
|---|
| 専有面積 | 50.23㎡ |
|---|
| 建物構造 | RC |
|---|
| 階 / 階数 | 5階建2階部分 |
|---|
| 築年月 | 1982年02月 |
|---|
| 現況 | 空 |
|---|
| 管理費 | 9550円 |
|---|
| 修繕積立金 | 7140円 |
|---|
| 引渡し | 相談 |
|---|
| 備考 | ■バルコニー面積/5.48㎡ ■総戸数/89戸 ■分譲会社/大和土地建物株式会社 ■施工会社/日本国土開発株式会社 ■管理形態/全部委託(住込) ■管理会社/新日本管財株式会社 |
|---|
| 取引態様 | 媒介 |
|---|
| 物件番号 | 20230430-4 |
|---|
| 情報登録日 | 0000年00月00日 |
|---|


◎新規内装リフォーム
■システムキッチン(食洗機・浄水器内蔵シャワー混合水栓・人工大理石トップ・3口コンロ) ■ユニットバス(浴室換気乾燥暖房機・追焚機能付・アクセントパネル) ■洗面化粧台(3面鏡・シャワー水栓) ■トイレ(温水洗浄機能付) ■建具 ■給水管(MBより新規) ■排水管(専有部分内新規) ■フローリング ■壁天井クロス ■TVモニター付インターホン ■電気温水器 ■下足入 ■室内クリーニング etc