Imperial Nakano Minami Flat
【
中古
マンション
】新規リノベーション!/方南町駅徒歩10分!/3LDK
インペリアル中野南フラット 4階
- 最寄駅
- 東京メトロ丸ノ内線方南支線 方南町駅 徒歩 10分
- 面積
専有面積/68.40㎡
- 築年月
- 1998年01月
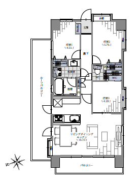
- 間取り
- 3 LDK
物件写真・間取り
物件概要
| 物件名 | Imperial Nakano Minami Flat |
|---|
| 交通機関 | 東京メトロ丸ノ内線方南支線 方南町駅 徒歩 10分 |
|---|
| 間取り | 3 LDK |
|---|
| 間取り詳細 | 洋室約5.76帖、約4.55帖、約4.28帖、LDK約16.10帖 |
|---|
| 土地権利 | 所有権 |
|---|
| 専有面積 | 68.40㎡ |
|---|
| 建物構造 | RC |
|---|
| 階 / 階数 | 5階建4階部分 |
|---|
| 築年月 | 1998年01月 |
|---|
| 駐車場 | 無 |
|---|
| 現況 | 空 |
|---|
| 管理費 | 19400円 |
|---|
| 修繕積立金 | 28860円 |
|---|
| 引渡し | 相談 |
|---|
| 備考 | ■バルコニー面積/8.50㎡ ■ルーフバルコニー面積/14.55㎡ ■ルーフバルコニー使用料/月額510円 ■総戸数/45戸 ■分譲会社/東京興産株式会社 ■施工会社/西松建設株式会社 ■管理形態/全部委託 ■管理会社/株式会社東急コミュニティー |
|---|
| 取引態様 | 媒介 |
|---|
| 物件番号 | 20231210-4 |
|---|
| 情報登録日 | 0000年00月00日 |
|---|


◎新規内装リノベーション
■フローリング新規貼替 ■ユニットバス新規交換 ■洗面化粧台新規交換 ■トイレ新規交換 ■システムキッチン新規交換 ■壁・天井クロス新規交換 ■建具・玄関収納新規交換 ■給湯器新規交換 ■洗濯水栓・防水パン新規交換