Park Heim Suginami
【
中古
マンション
】新規リノベーション!/杉並区堀ノ内2丁目/1LDK
パークハイム杉並 2階
- 最寄駅
- 東京メトロ丸ノ内線方南支線 方南町駅 徒歩 7分
- 面積
専有面積/41.74㎡
- 築年月
- 1979年09月
- 間取り
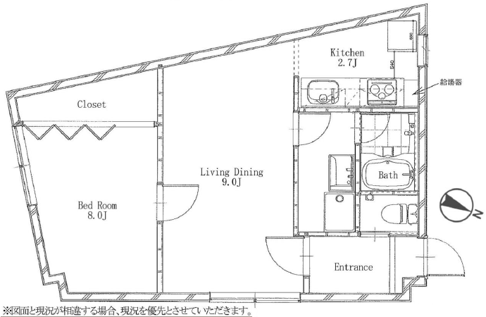
- 1 LDK
物件写真・間取り
物件概要
| 物件名 | Park Heim Suginami |
|---|
| 交通機関 | 東京メトロ丸ノ内線方南支線 方南町駅 徒歩 7分 |
|---|
| 間取り | 1 LDK |
|---|
| 間取り詳細 | 洋室約8.0帖、LD約9.0帖、K約2.7帖 |
|---|
| 土地権利 | 所有権 |
|---|
| 専有面積 | 41.74㎡ |
|---|
| 建物構造 | RC |
|---|
| 階 / 階数 | 6階建2階部分 |
|---|
| 築年月 | 1979年09月 |
|---|
| 現況 | 空 |
|---|
| 管理費 | 7800円 |
|---|
| 修繕積立金 | 5200円 |
|---|
| 引渡し | 相談 |
|---|
| 備考 | ■バルコニー面積/- ■総戸数/77戸 ■旧分譲会社/三井不動産株式会社 ■施工会社/株式会社竹中工務店 ■管理形態/全部委託(日勤) ■管理会社/三井不動産レジデンシャルサービス株式会社 |
|---|
| 取引態様 | 媒介 |
|---|
| 物件番号 | 20190822-1 |
|---|
| 情報登録日 | 0000年00月00日 |
|---|



◎新耐震基準適合マンション
(2014年耐震補強工事実施)
◎2017年 大規模修繕工事実施
◎東南採光・角部屋・陽当り眺望良好
◎閑静な住環境
◎快適な暮らしを演出する設備&仕様
◎新規内装リノベーション
■システムキッチン(シエラ)色:スムースホワイト ■バス(BW-1116LBE+H)アクセントパネル色:テオプロストーン(浴室換気乾燥)エコフルシャワー・ワイドミラー ■洗面化粧台(ピアラ)色:グロスホワイト(シャワー水栓) ■トイレ(アメージュZ)色:ピュアホワイト(ウォシュレット) ■床:フローリング ■建具:ラシッサ(LIXIL) ■クロス(アクセントクロス) ■照明(全室) ■TVモニター付インターホン ■エアコン1基 等