Maison Boa Suginami
【
中古
マンション
】中野富士見町駅徒歩5分/2DK
メゾンボア杉並 3階
- 最寄駅
- 東京メトロ丸ノ内線方南支線 中野富士見町駅 徒歩 5分
- 面積
専有面積/38.77㎡
- 築年月
- 1978年02月
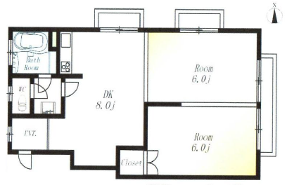
- 間取り
- 2 DK
物件写真・間取り
物件概要
| 物件名 | Maison Boa Suginami |
|---|
| 交通機関 | 東京メトロ丸ノ内線方南支線 中野富士見町駅 徒歩 5分 東京メトロ丸ノ内線方南支線 方南町駅 徒歩 10分 |
|---|
| 間取り | 2 DK |
|---|
| 間取り詳細 | 洋室約6.0帖×2、DK約8.0 |
|---|
| 土地権利 | 所有権 |
|---|
| 専有面積 | 38.77㎡ |
|---|
| 建物構造 | RC |
|---|
| 階 / 階数 | 5階建3階部分 |
|---|
| 築年月 | 1978年02月 |
|---|
| 駐車場 | 無 |
|---|
| 現況 | 空 |
|---|
| 管理費 | 7000円 |
|---|
| 引渡し | 即時 |
|---|
| 備考 | ■バルコニー面積/4.28㎡ ■総戸数/13戸 ■旧分譲会社/株式会社川田商会 ■施工会社/株式会社大久工務店 ■管理形態/自主管理 ※修繕積立金の分離徴収なし |
|---|
| 取引態様 | 媒介 |
|---|
| 物件番号 | 20200710-1 |
|---|


◎目の前コンビニ・ドラッグストアの好立地
◎陽当り・眺望良好な角住戸
◎リノベーションプラン・工事承ります