Meiho Izumi Mansion
【
中古
マンション
】新規リノベーション!/方南町駅徒歩2分!/2LDK+SIC
明穂和泉マンション 6階
- 最寄駅
- 東京メトロ丸ノ内線方南支線 方南町駅 徒歩 2分
- 面積
専有面積/43.74㎡
- 築年月
- 1971年07月
- 間取り
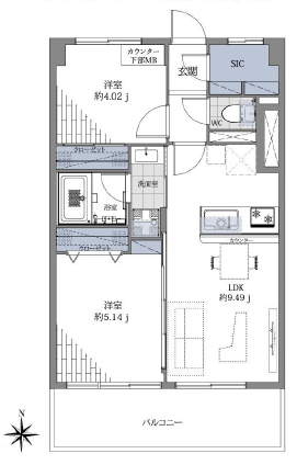
- 2 LDK
物件写真・間取り
物件概要
| 物件名 | Meiho Izumi Mansion |
|---|
| 交通機関 | 東京メトロ丸ノ内線方南支線 方南町駅 徒歩 2分 |
|---|
| 間取り | 2 LDK |
|---|
| 間取り詳細 | 洋室約5.14帖、約4.02帖、LDK約9.49帖 |
|---|
| 土地権利 | 所有権 |
|---|
| 専有面積 | 43.74㎡ |
|---|
| 建物構造 | RC |
|---|
| 階 / 階数 | 7階建6階部分 |
|---|
| 築年月 | 1971年07月 |
|---|
| 駐車場 | 無 |
|---|
| 現況 | 空 |
|---|
| 管理費 | 17710円 |
|---|
| 修繕積立金 | 7980円 |
|---|
| 引渡し | 相談 |
|---|
| 備考 | ■バルコニー面積/6.48㎡ ■総戸数/42戸 ■分譲会社/- ■施工会社/田中建設株式会社 ■管理形態/全部委託(日勤) ■管理会社/日本ハウズイング株式会社 |
|---|
| 取引態様 | 媒介 |
|---|
| 物件番号 | 2021-924-3 |
|---|
| 情報登録日 | 0000年00月00日 |
|---|


◎長期修繕計画有
◎南向き・陽当り良好
◎令和3年1月大規模修繕実施済
◎新規内装リノベーション
■フローリング新規貼替 ■ユニットバス新規交換 ■洗面化粧台新規交換 ■トイレ新規交換 ■システムキッチン新規交換 ■壁・天井クロス新規交換 ■建具・玄関収納新規交換 ■給湯器新規交換 ■洗濯水栓・防水パン新規交換 ■給排水管・給湯管新規交換(専有部)