Imperial Nakano Minami Flat
【
中古
マンション
】新規内装リフォーム!/方南町駅徒歩10分!/2LDK
インペリアル中野南フラット 3階
- 最寄駅
- 東京メトロ丸ノ内線方南支線 方南町駅 徒歩 10分
- 面積
専有面積/61.74㎡
- 築年月
- 1998年01月
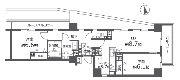
- 間取り
- 2 LDK
物件写真・間取り
物件概要
| 物件名 | Imperial Nakano Minami Flat |
|---|
| 交通機関 | 東京メトロ丸ノ内線方南支線 方南町駅 徒歩 10分 |
|---|
| 間取り | 2 LDK |
|---|
| 土地権利 | 所有権 |
|---|
| 専有面積 | 61.74㎡ |
|---|
| 建物構造 | RC |
|---|
| 階 / 階数 | 5階建3階部分 |
|---|
| 築年月 | 1998年01月 |
|---|
| 駐車場 | 無 |
|---|
| 現況 | 空 |
|---|
| 管理費 | 17500円 |
|---|
| 修繕積立金 | 26050円 |
|---|
| 引渡し | 相談 |
|---|
| 備考 | ■バルコニー面積/5.04㎡ ■ルーフバルコニー面積/6.00㎡ ■ルーフバルコニー使用料/月額210円 ■総戸数/44戸 ■分譲会社/東京興産株式会社 ■施工会社/西松建設株式会社 ■管理形態/全部委託 ■管理会社/株式会社東急コミュニティー ■ペット飼育/不可 |
|---|
| 取引態様 | 媒介 |
|---|
| 物件番号 | 20250514-5 |
|---|
| 情報登録日 | 0000年00月00日 |
|---|


◎新規内装リフォーム