Terrace Cesar Honancho
【
中古
マンション
】新規内装リノベーション!/方南町駅2分!/1LDK!
テラスセザール方南町 2階
- 最寄駅
- 東京メトロ丸ノ内線方南支線 方南町駅 徒歩 2分
- 面積
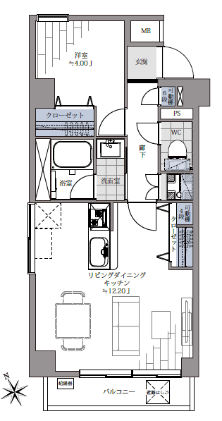
専有面積/42.48㎡
- 築年月
- 1983年06月
- 間取り
- 1 LDK
物件写真・間取り
物件概要
| 物件名 | Terrace Cesar Honancho |
|---|
| 交通機関 | 東京メトロ丸ノ内線方南支線 方南町駅 徒歩 2分 |
|---|
| 間取り | 1 LDK |
|---|
| 土地権利 | 所有権 |
|---|
| 専有面積 | 42.48㎡ |
|---|
| 建物構造 | RC |
|---|
| 階 / 階数 | 4階建2階部分 |
|---|
| 築年月 | 1983年06月 |
|---|
| 現況 | 空 |
|---|
| 管理費 | 11520円 |
|---|
| 修繕積立金 | 10800円 |
|---|
| 引渡し | 相談 |
|---|
| 備考 | ■バルコニー面積/3.53㎡ ■総戸数/18戸 ■分譲会社/--- ■施工会社/村本建設株式会社 ■管理形態/全部委託(日勤) ■管理会社/株式会社穴吹ハウジングサービス ■ペット飼育/不可 |
|---|
| 取引態様 | 媒介 |
|---|
| 物件番号 | 20250715-3 |
|---|
| 情報登録日 | 0000年00月00日 |
|---|


◎新規内装リノベーション